

Your trusted partner in MEP, HVAC & Fire Protection Systems
Located in the heart of Belgrade, Serbia, TERMOPROTEKT is a trusted leader in delivering comprehensive solutions in MEP, HVAC and advanced fire protection systems.
With a commitment to excellence and innovation, we provide end-to-end services tailored to meet the unique needs of our clients across various industries.
At TERMOPROTEKT, we pride ourselves on offering a complete range of services
to ensure the success and sustainability of your projects.

Our team of experts provides professional advice to identify the most effective and efficient solutions for your project. We combine technical expertise with practical insights to optimize system performance and cost.

With years of experience and cutting-edge tools, our engineers design and implement systems that prioritize functionality, energy efficiency and compliance with international standards.

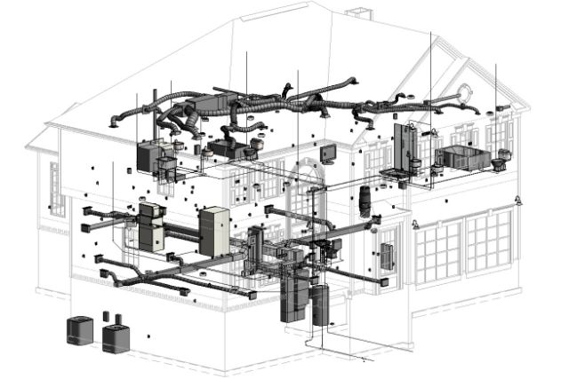
From initial concepts to detailed schematics, we specialize in creating custom designs that seamlessly integrate with your building’s architecture and operational requirements.

Our skilled technicians ensure precision and quality during the installation process, adhering to strict timelines and safety protocols to deliver outstanding results.

We rigorously test and fine-tune all systems to guarantee optimal performance, reliability and adherence to specifications.

With proactive maintenance services, we help you maximize the longevity and efficiency of your systems, minimizing downtime and operational disruptions.

From design to maintenance, we prioritize quality and compliance, adhering to local and international standards.
We work as a unified team with dedicated professionals handling your project to ensure its successful completion.
Our quality services can help you save time and money during the permit phase.
Exprerience & Expertise
Building construction is a complex and multifaceted process that requires the coordination of numerous components. TERMOPROTEKT is a team of experienced engineers and technicians with many years of experience in the design, execution and maintenance of mechanical and electrical installations. Our team has extensive knowledge in MEP, HVAC and fire protection systems, delivering projects that exceed expectations.
Client-Centric Approach
We focus on understanding your needs and goals, ensuring tailored solutions that align with your vision. Each client has unique requirements based on their project’s scope, industry, location and budget. A client-centric approach ensures that the design, installation, and maintenance solutions are customized to meet these specific needs. Prioritizing client expectations fosters trust and satisfaction, leading to long-term relationships.
Innovation & Technology
Using the latest technology and industry best practices, we ensure your systems are efficient, sustainable and future-ready.
We make sure that mechanical, electrical and plumbing systems are coordinated effectively into the building design.
Our supervising installation and testing MEP engineers supervise the installation.

Whether you’re starting a new project or optimizing an existing system, TERMOPROTEKT is here to help. Let us partner with you to build efficient, safe, and innovative solutions for your MEP, HVAC and fire protection needs.
Contact us today to learn how our expertise can bring your vision to life.
📞 +381604466520
📧 office@termoprotekt.com
🌐 www.termoprotekt.com
